preu
superficie
habitacions
banys
Habitatge en bon estat, per posar-la al seu gust, a pocs minuts caminant de la parada del metro Joanic L4 groga, de Travessera de Gràcia i del Passeig Sant Joan, també té al costat diverses línies de bus.
Tots els serveis, comerços i equipaments a la porta de casa.
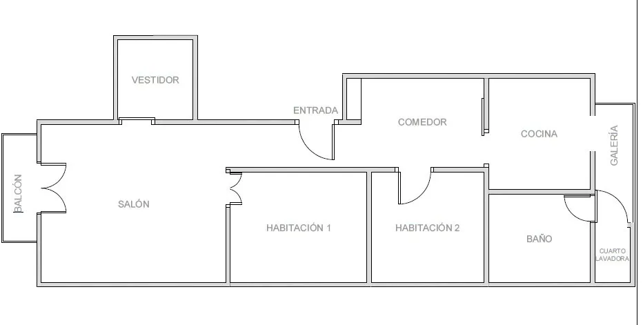
Exterior al carrer amb balcó i a pati d’illa, carrer molt tranquil, està ubicat en una finca sense ascensor, en una primera planta real.
Té 63 m2 construïts segons cadastre, dels quals 54 m2 són útils.
Està distribuït en saló i menjador en dos ambients, cuina independent, 2 habitacions (1 doble / 1 ind) més una habitació tipus despatx o vestidor i bany complet amb plat de dutxa, a més compta amb balcó interior a pati d’illa amb traster i galeria.
Disposa de terres de gres, fusteria d’alumini, calefacció amb gas natural i aire condicionat.
L’habitatge es ven completament moblada i equipada amb electrodomèstics.
Finca catalogada en bon estat de l’any 1880.
COMUNITAT: 30€/ MES
IBI: 392€/ ANY.
posa't en contacte
El nostre agent us facilitarà la visita del immoble




































